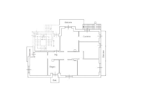
ROATA ROSSI: Casa bifamiliare indipendente su 4 lati composta da due distinte unità abitative con ingresso autonomo. L’appartamento al pian terreno è composto da ingresso, tinello su cui si affaccia un primo balcone, cucinotto quattro camere da letto tre delle quali con balcone, bagno accessoriato di doccia e vasca con porta finestra che conduce ad un ulteriore balcone. Finiture originarie. Al primo piano appartamento completamente ristrutturato composto di ingresso in soggiorno, cucina abitabile, tre camere da letto due con balcone, bagno accessoriato di doccia e balcone. Ampio terrazzino angolare con accesso dalla cucina, dal soggiorno e da una delle tre camere da letto. Al piano seminterrato ampio magazzino con altri tre locali e locale caldaia, al piano interrato grossa cantina. Nel cortile ampio portico aperto ad uso deposito. Terreno di pertinenza di circa 2700 mq
