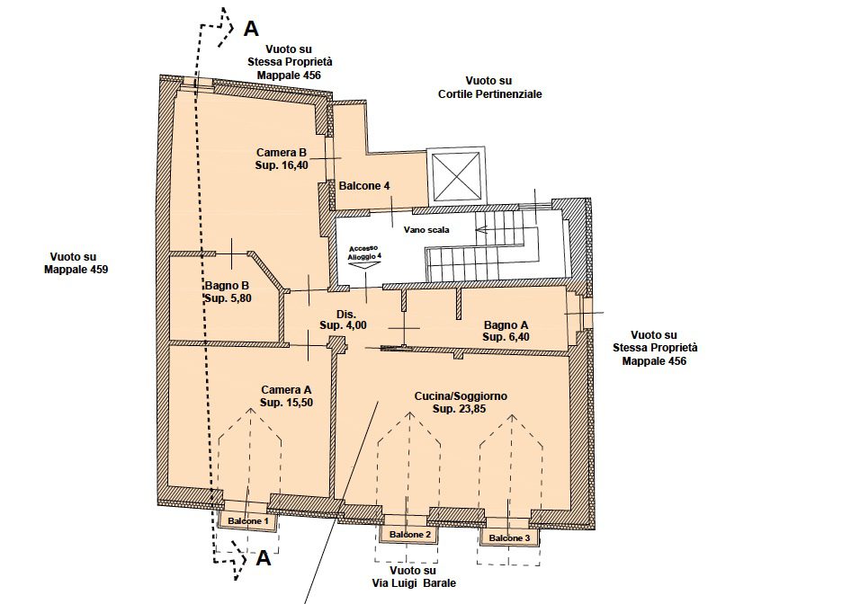
ROCCAVIONE: In centro paese, proponiamo in vendita esclusivo appartamento di nuova costruzione sito all’ultimo piano con ascensore, libero su 4 lati e composto di ingresso, soggiorno-cucina, disimpegno, 2 camere, doppi servizi, ampio balcone e altri 3 balconcini. L’immobile sarà consegnato in classe energetica B, dotato di riscaldamento autonomo a pavimento, cappotto esterno, serramenti in pvc con triplo vetro, ventilazione meccanica puntuale. E’ prevista la predisposizione per impianto di climatizzazione. Essendo ancora in fase di realizzazione ci sarà la possibilità di personalizzazione da parte dell’ acquirente con detrazioni fiscali. Possibilità di acquisto garage a scelta.
